
In 2021, we designed and permitted the first ICCF (Insulated Composite Concrete Form) Accessory Dwelling Unit in the city of San Diego. Although we have designed many ICCF residences in the past, this was the first ADU in the city limits of San Diego. Since then, we have continued to design with ICCF and are excited to share another ADU in San Diego under construction – pictured here.
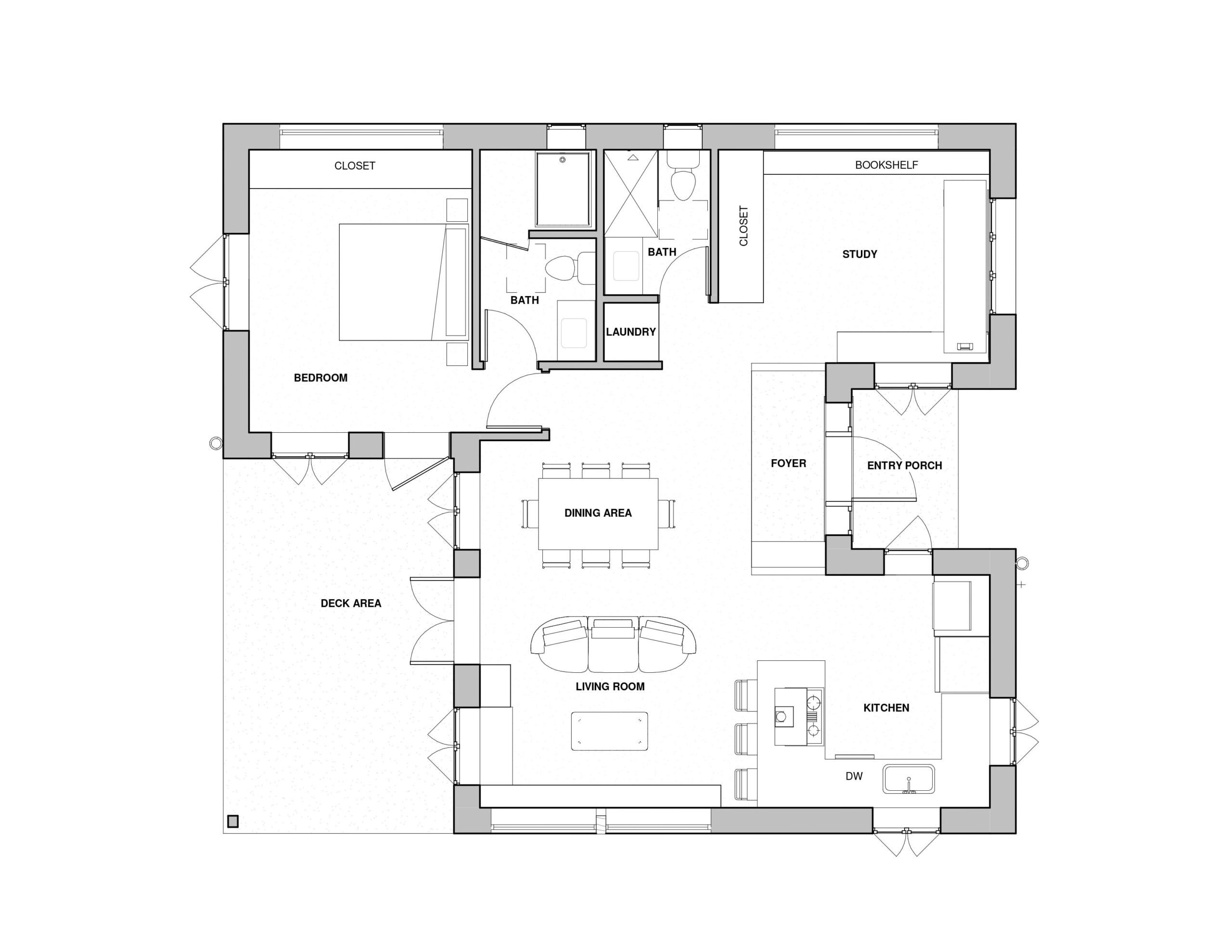
We designed and permitted this 2-bed, 2-bath, 1194 SF ADU in Mira Mesa for a homeowner who wanted to take advantage of the extra income generated from a second unit on the property. The exterior ICCF walls are made from post-consumer Styrofoam and concrete blocks. They provide high thermal and acoustical insulation as well as high fire, mold and insect resistance. ICCF also streamlines construction as the large block size and simple wall assembly reduces and simplifies construction time.
The design incorporates a butterfly roof which helps guide rainwater into collection barrels and serves as a perfect base for new solar panels. The main entry door is recessed into the facade to create a small, covered entry porch. The interior layout is an open concept and pours out onto a spacious exterior deck. The primary bedroom has an ensuite bathroom and the secondary bedroom / study serves as a versatile space with access to a full bathroom. Windows and glass doors provide natural daylighting, cross ventilation, and views to the exterior living spaces.
Let us know what questions you have about ICCF and/or ADUs!
Architect: Hubbell and Hubbell Architects
Contractor: Scott Lee Rudge Construction
Structural Engineer: Martin Structural Consultants



Leave A Comment